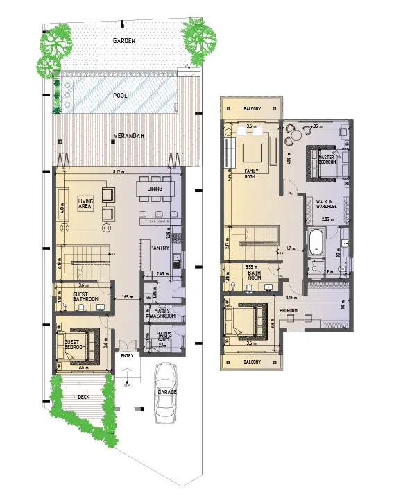
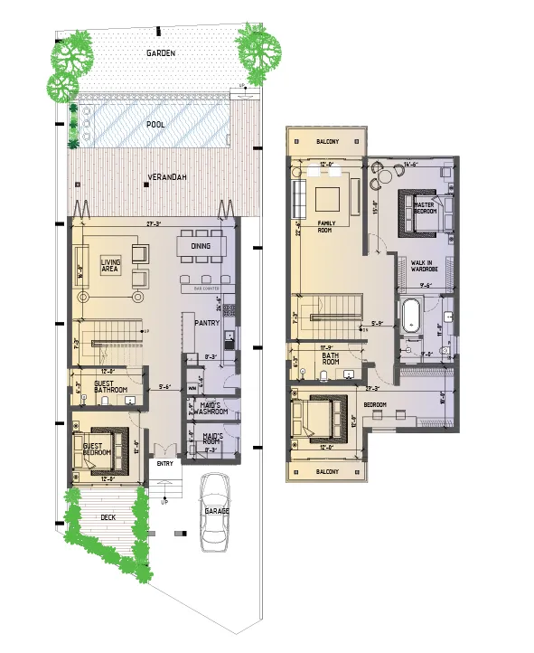
LUXURY BEACH MANSION

Area: sq feet 3200 | sq meters 297.4 | perches 10

Our luxury beach mansion is where luxury meets nature, creating an unforgettable coastal experience.

It is remarkable that all of the villas have ocean views, are exquisitely constructed with excellent Balinese architectural elements, and are surrounded by spectacular scenery. The property radiates tranquility, privacy, and a remarkable experience of living in a gated villa compound.

Beach Front Apartment for Sale Sri Lanka

3 bedroom

Beach Front Apartment for Sale Sri Lanka

living room

Beach Front Apartment for Sale Sri Lanka

dining room

Beach Front Apartment for Sale Sri Lanka

Bathtub

Hot Water

Beach Front Apartment for Sale Sri Lanka

Fully Air Conditioned

Nearby Landmarks

Citrus Waskaduwa

3 mins

Tangerine Beach Hotel

5 mins

Royal Palms Beach Hotel

5 mins

The Blue Water

10 mins

Jie Jie Beach by Jetwing

15 mins

Wadduwa Clinic

5 mins

Metro Clinic

7 mins

Swastha Ayurveda

15 mins

Wadduwa Beach

City of Gem Museum

Ayurvedic spas

Traditional fishing villages

Water sports

Pizza hut

5 mins

Seafood restaurants

5 mins

Dominos

10 mins

Cargills Food City

5 mins

Arpico

8 mins

Keells Super

10 mins

Key Specifications

Substructure

Individual footing foundation with R.C.C. columns, plinth beam, random rubble masonry work as suggested by the Structural Engineer.

Super Structure

R.C.C.Columns,beams,slabs and cement blocks on walls as directed by the Architect.

Finishes Floor

Living,dining, bedrooms, and other internal areas to be finished with floor titles Bathrooms, balconies, and terraces are to be laid with non-slip floor tiles or micro-cement flooring as directed by the architect. All tiles shall be of superior quality, as available in the industry.

Walls

Internal walls to be plastered smooth; apply two coats of putty, a filler coat, and two coats of emulsion paint, color to be selected by the architect. All external walls are to be plastered rough or semi-rough, and one coat of wall primer and two coats of weather shield paint, the color of which is to be selected by the architect, are to be applied.

Amenities

Al Fresco Dining

BBQ

Beach Ball

Beach Bar

Beach Bed

Beach Club

Beach Polo

Bonfire Area

Coffee Shop

Gym

Jogging

Kids Play Area

Multipurpose Hall

Pool Table

Restaurant

Sand Pit

Sun Bath

Tavern

Water Jet

Water Slider

Yoga Deck

payment
plan

View Plans

Monthly Installment
Basis

Bank Loan
Basis

BACK TO VILLAS